Work has commenced on this site for 3 new apartments. Its a redevelopment of an EDF substation in a Conservation Area in a highly desirable commuter city. We achieved a hard won planning permission for this site. The site had been derelict and out of use for more than 5 years. We used specialist planning advisers (in house) to assist in tailoring the highly bespoke design to meet planning policy. The substation is a locally listed building. Any extension had to be ‘in keeping’ and subservient to the main building, in the view of the planning officers. Our design includes a decked roof garden area at the rear, to one of the flats, which gives much coveted outside space. We put this at the rear to catch afternoon sun and stay away from the noisy traffic. This scheme makes the best of fairly difficult site conditions.
One of 6 visuals prepared for the Planning Application
Proposed Elevations
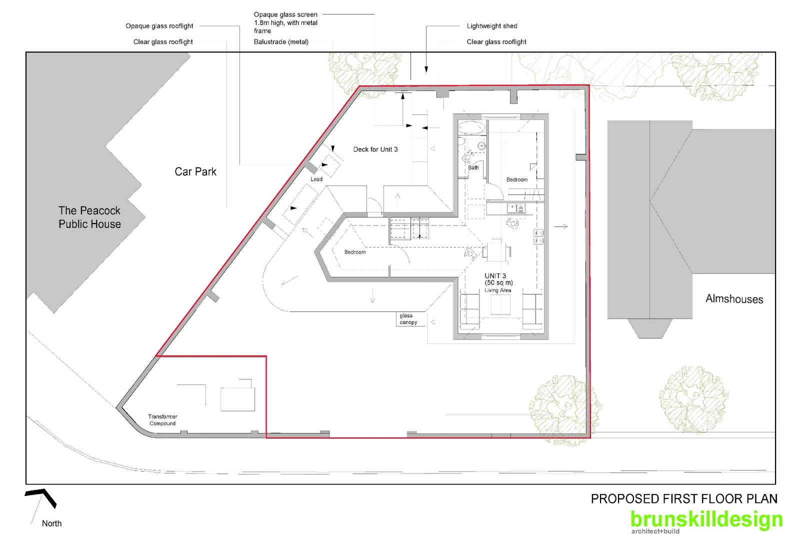
Proposed First Floor Plan
Proposed Ground Floor Plan
Curved brickwork and roofing to make maximum benefit of the site
Original Substation being restored and extended







