This is a typical smaller project, which hopefully will make a big difference to our clients. In this area, its worth maximising the space in your house. It can be tricky in a conservation area of course.
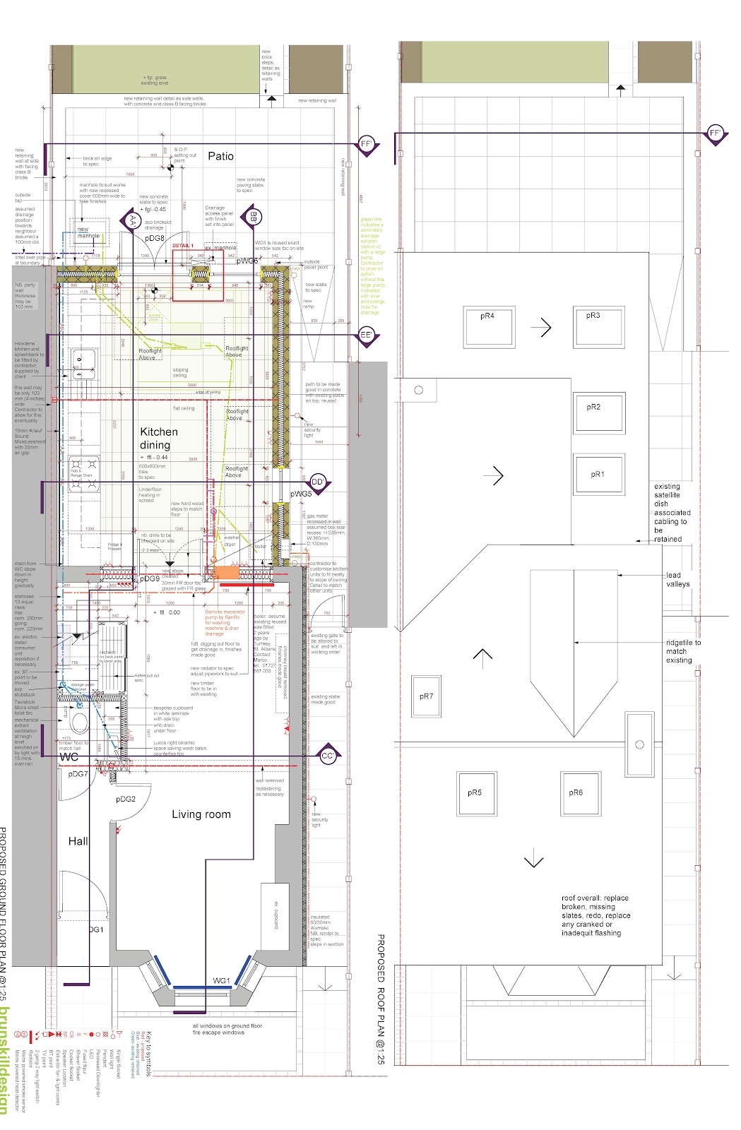
Large new room with 4 rooflights is being created by the clever insertion of bespoke steelwork. Drainage is threaded into the available space. New brick arch is formed to match existing. The floor level has been lowered to achieve the maximum size of room at the rear of the property. There were some amendments needed to water and gas services to allow these works to happen. Inside the staircases are new, in order to add a new ground level wc and to allow access to the new loft room.
This is an earlier set of 3d views of the project.
Below, are some working drawings for the project.







